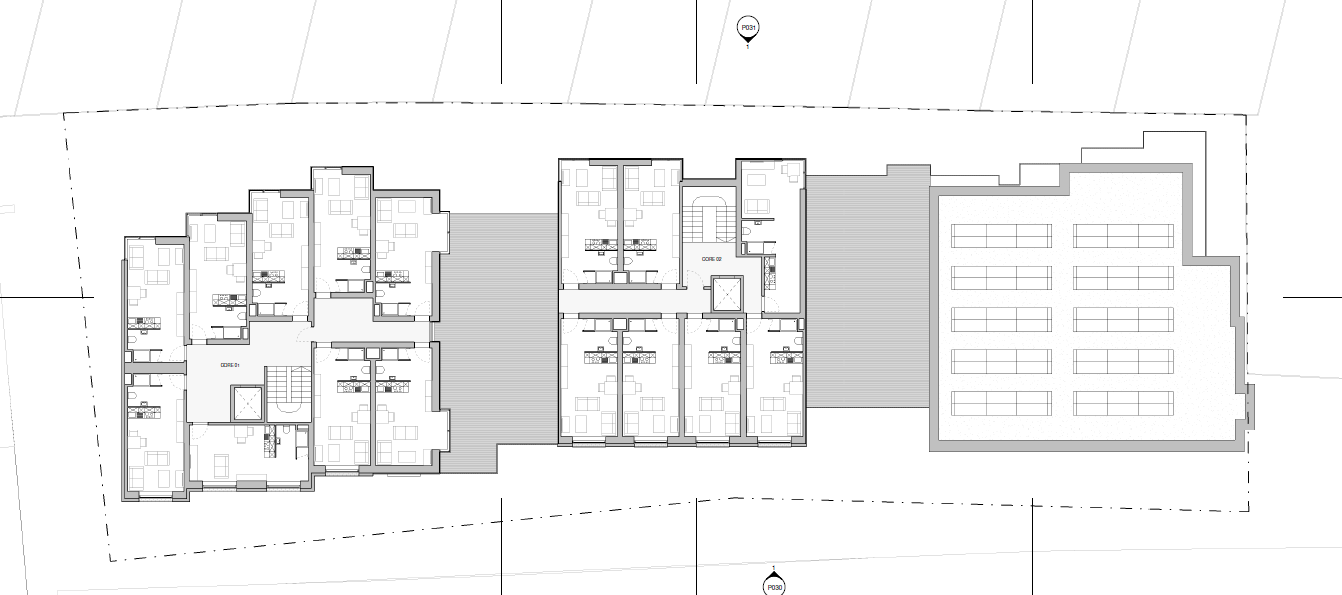
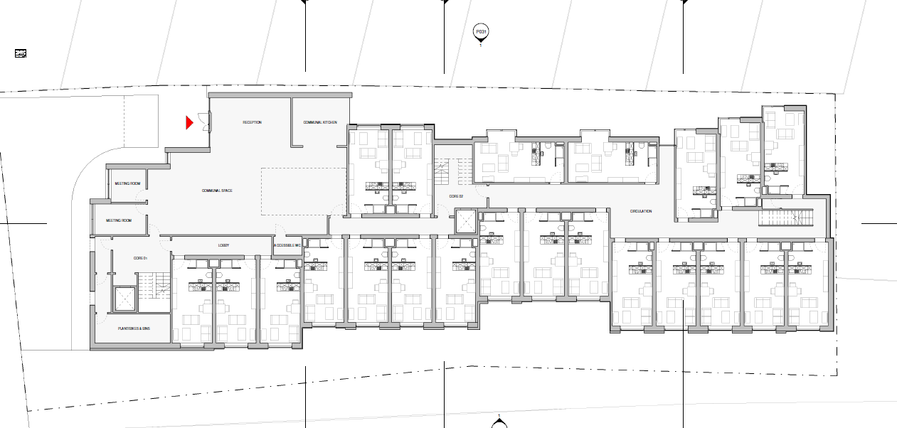
North Ealing





117 bedroom hostel for Bedu a private developer.